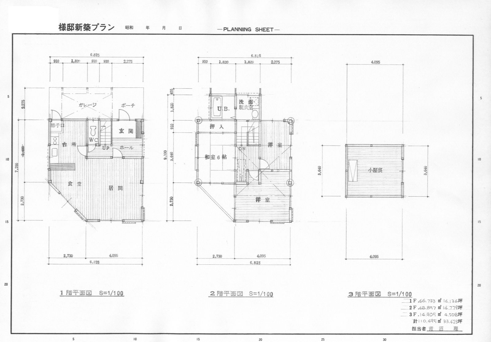
- 青沼 理
- 青沼建築工房(有) 一級建築士事務所 取締役
- 東京都
- 建築家
対象:住宅設計・構造
このコラムに類似したコラム
30坪プラン 北側玄関3LDK 木造2階建て(手書きシリーズ) 青沼 理 - 建築家(2013/03/10 15:39)
61坪 8.0間 東入 傾斜地 木造2階建て+地下玄関、プール-1(手書きシリーズ) 青沼 理 - 建築家(2013/04/11 10:03)
39坪 7.0間 東入 傾斜地 木造2階建て+地下玄関(手書きシリーズ)-2 青沼 理 - 建築家(2013/04/06 17:09)
39坪 7.0間 東入 傾斜地 木造2階建て+地下玄関(手書きシリーズ)-1 青沼 理 - 建築家(2013/04/04 10:20)
おカネをかけずにイイものにする。それがデザイン 岩間 隆司 - 建築家(2017/03/24 10:43)









